Villa singola in vendita

San Giovanni In Croce, Via Ruggeri
€ 440.000
Prezzo aggiornato
4 locali 4 locali
300 Mq 300 Mq
2 bagni 2 bagni

Villa singola in vendita

San Giovanni In Croce, Via Ruggeri

Descrizione annuncio

SPLENDIDA SOLUZIONE INDIPENDENTE CON GIARDINO PRIVATO

In zona residenziale a pochi passi dal centro del paese, proponiamo in vendita villa unifamiliare di circa 400 mq.
La villa è disposta su due piani con mansarda, include ancheuna depandance distaccata, che puo essere sfruttato come spazio aggiuntivo per deposito o per soddisfare le tue esigenze personali.

I punti di forza di questa villa sono senza dubbio l’eleganza ed il livello alto delle finiture oltre il verdeggiante giardino circostante che la rendono completamente indipendente nella sua privacy.

Soluzione indipendente internamente accessibile da doppio ingresso con spazi molto generosi adatta ad una famiglia.
Tra le finiture ricercate è caratterizzata da un imponente cancello in sicurezza che racchiude un meraviglioso giardino.


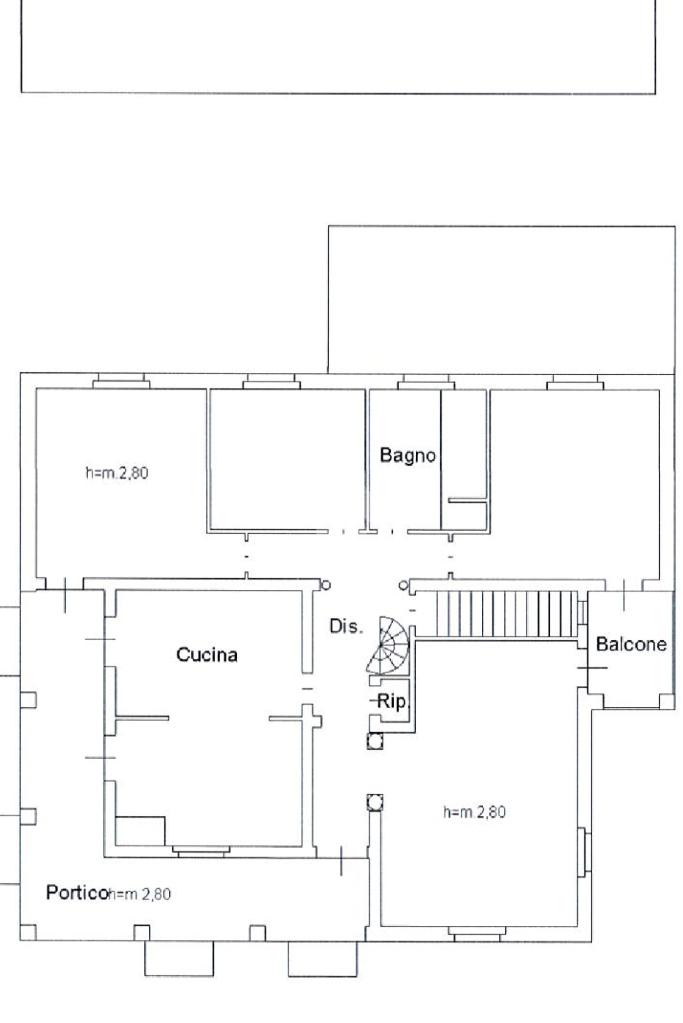
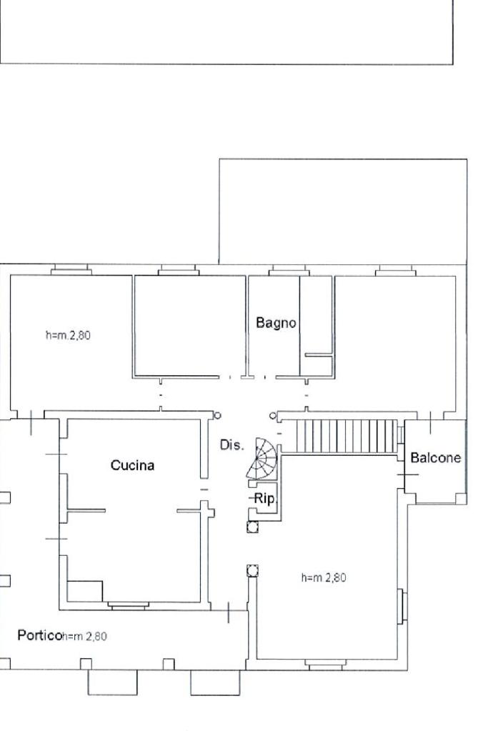
All’interno della villa troverai una luminosa cucina completamente attrezzata, un ampio soggiorno perfetto per il tuo relax e il divertimento con la famiglia e gli amici e le tre camere da letto spaziose che offrono privacy e confort.
La proprietà inoltre dispone di due bagni moderni e ben rifiniti, assicurando praticità per tutta la famiglia.
Una suggestiva taverna che offre uno spazio aggiuntivo per intrattenere gli ospiti o creare un area di svago personale.

Dispone di ampio garage di 96 mq con cantina adiacente.

Con la sua posizione privilegiata a San Giovanni in Croce e la sua combinazione perfetta di spazi abitativi ben progettati e aree esterne curate, questa villa rappresenta un’opportunità imperdibile per chi cerca una casa di prestigio e confort.



Non perdere l’occasione di possedere questa straordinaria villa.

Se sei interessato alla soluzione e vuoi avere più informazioni o per fissare il tuo appuntamento senza impegno, contattaci al: 3387238266.

Mostra tutto

Nelle vicinanze

Trasporto pubblico Trasporto pubblico
San Giovanni in Croce
San Giovanni in Croce
430 m
Trasporto pubblico
1,1 Km
Farmacia Farmacia
Farmacia
380 m
Supermercati Supermercati
Supermercati
370 m
Ristoranti Ristoranti
La Clochette
1,6 Km
Mostra tutto

Caratteristiche

Rif.:
61092283
Piano:
2 di 2 (Piano su più livelli)
Box:
1
Posti auto:
1
Terrazzi:
2
Camere da letto:
3
Mostra tutto
Prezzo Prezzo
€ 440.000
Rata mutuo Rata mutuo
€ 2.028 / mese
Spese annue Spese annue
€ 0
Proponi il tuo prezzoProponi il tuo prezzo
Immobile valutato con T·Valuta

Classe Energetica

F
F
F
F
F
F
F
F
F
EP invernale del fabbricato:
EP estiva del fabbricato:
Anno di costruzione:
1992
Riscaldamento:
Autonomo
Tipo impianto:
A radiatori
Tipo alimentazione:
Metano

Prezzo ridotto di €1 (12%%)

Ti interessa visionare l'immobile?

Fissa un appuntamento  Fissa un appuntamento

Richiedi informazioni

* Questi campi sono obbligatori

Calcola il tuo mutuo

Semplice e senza impegno
Anticipo

( % )
Mutuo

( % )

pochi semplici passi

inserisci i tuoi dati
Questionario completato
Grazie per aver richiesto un appuntamento senza impegno con un nostro Consulente del Credito e Assicurativo.

Hai inserito correttamente tutti i dati necessari e a breve riceverai una e-mail con un link da convalidare per inviare i tuoi dati.
Affiliato
Marida Home Srl
Via Cavour, 58 26041 Casalmaggiore (CR)

Il nostro staff


  • Ida Cipro
    Responsabile

  • Tatiana Zanandrea
    Collaboratrice

  • Mara Parisi
    Affiliata
Via Cavour, 58 26041 Casalmaggiore (CR)
Zona: Casalmaggiore-Piadena-Gussola-Rivarolo Mantovano-Sabbioneta-S.Giovanni in Croce-Martignana di Po
Mostra su mappa
Orari: Dal lunedì al venerdì dalle ore 9 alle ore 13 e dalle ore 15 alle ore 20. Sabato dalle ore 9 alle ore 17
Affiliato
Marida Home Srl
Via Cavour, 58 26041 Casalmaggiore (CR)

2025 Tecnocasa Franchising S.p.A. - P. IVA 08365160152 - Via Monte Bianco 60/A 20089 Rozzano (MI). Ogni agenzia ha un proprio titolare ed è autonoma. Privacy policy | Policy utilizzo | Cookie policy