Quadrilocale in vendita

Casalmaggiore, Via Camillo Benso Conte di Cavour
€ 165.000
4 locali 4 locali
155 Mq 155 Mq
2 bagni 2 bagni

Quadrilocale in vendita

Casalmaggiore, Via Camillo Benso Conte di Cavour

Descrizione annuncio

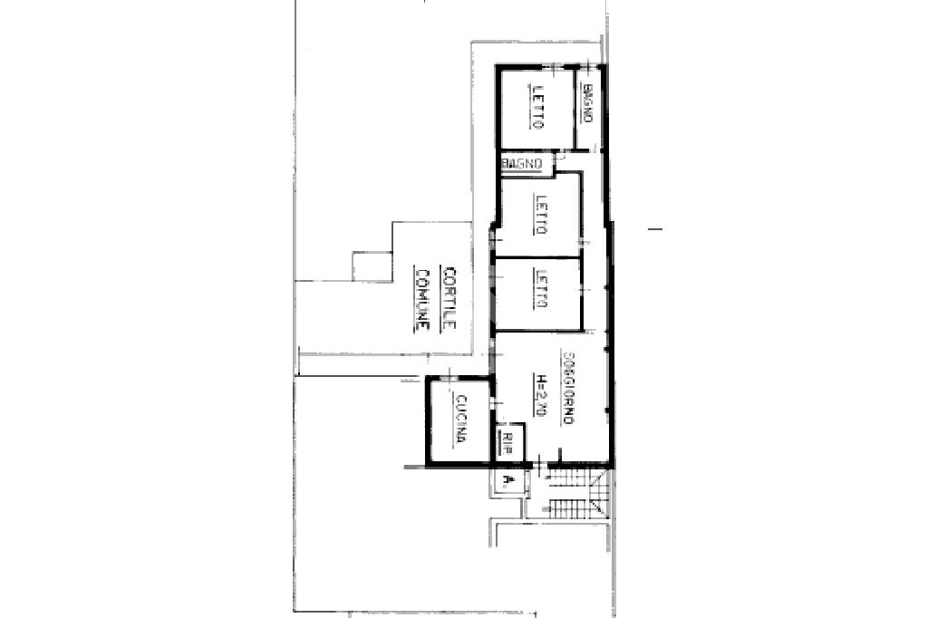
Nel cuore di Casalmaggiore, proponiamo un quadrilocale di 155 mq circa, situato al secondo piano con ascensore.

L'appartamento offre spazi ampi e ben distribuiti, ideali per chi cerca comfort e funzionalità.

La zona giorno si apre su un ampio soggiorno, dotato di accesso a un balcone che abbraccia l'intero perimetro dell'abitazione, garantendo così luminosità e un piacevole affaccio esterno.
La cucina è abitabile, anch'essa con accesso al balcone e completa l'ambiente un comodo ripostglio.

La proprietà comprende due servizi, pensati per soddisfare le esigenze di una famiglia.

A completare il tutto troviamo una cantina e un posto auto coperto, che aggiungono praticità e comodità.

La posizione centrale permette di godere di tutti i servizi e le comodità che Casalmaggiore ha da offrire, rendendo questa soluzione abitativa perfetta per chi desidera vivere in un contesto urbano senza rinunciare a spazi generosi.

Per fissare il tuo appuntamento senza impegno 338.7183991

Mostra tutto

Nelle vicinanze

Trasporto pubblico Trasporto pubblico
Casalmaggiore
Casalmaggiore
930 m
Mezzano Rondani
Mezzano Rondani
2,7 Km
Ricariche auto elettriche Ricariche auto elettriche
U2 Supermercato Casalmaggiore | EnelX
1,0 Km
Scuole Scuole
Istituto superiore Polo Romani
340 m
Scuole
780 m
Farmacia Farmacia
Farmacia
130 m
Ospedali Ospedali
Ospedali
420 m
Co.Me.Te. Cooperativa Medici del Territorio - Societa' Cooperativa a R. L.
610 m
Avis comunale di Casalmaggiore - Associazione volontari italiani sangue
880 m
Supermercati Supermercati
CONAD
440 m
Famila
490 m
Lidl
570 m
Dico Market
580 m
ll2
1,0 Km
Negozi Negozi
NKD
1,2 Km
Bar Bar
Tweety`s Bar (Terzi Giorgio)
470 m
Ristoranti Ristoranti
Pizzeria Lo Sfizio
520 m
Ristoranti
1,2 Km
Mostra tutto

Caratteristiche

Rif.:
61119174
Piano:
2 di 3 con ascensore (Piano medio)
Posti auto:
1
Balconi:
1
Camere da letto:
3
Arredamento:
Assente
Mostra tutto
Prezzo Prezzo
€ 165.000
Rata mutuo Rata mutuo
€ 783 / mese
Spese annue Spese annue
€ 1.600
Proponi il tuo prezzoProponi il tuo prezzo
Immobile valutato con T·Valuta

Classe Energetica

F
F
F
F
F
F
F
F
F
EP globale non rinnovabile:
220.00 kW h/m² anno
EP invernale del fabbricato:
EP estiva del fabbricato:
Anno di costruzione:
1993
Riscaldamento:
Autonomo
Tipo impianto:
A radiatori
Tipo alimentazione:
Metano

Ti interessa visionare l'immobile?

Fissa un appuntamento  Fissa un appuntamento

Richiedi informazioni

Clicca su Leggi per aprire l'informativa
* Questi campi sono obbligatori

Calcola il tuo mutuo

Semplice e senza impegno
Anticipo

( % )
Mutuo

( % )

pochi semplici passi

inserisci i tuoi dati
Questionario completato
Grazie per aver richiesto un appuntamento senza impegno con un nostro Consulente del Credito e Assicurativo.

Hai inserito correttamente tutti i dati necessari e a breve riceverai una e-mail con un link da convalidare per inviare i tuoi dati.
Affiliato
Marida Home Srl
Via Cavour, 58 26041 Casalmaggiore (CR)

Il nostro staff


  • Ida Cipro
    Responsabile

  • Tatiana Zanandrea
    Collaboratrice

  • Mara Parisi
    Affiliata
Via Cavour, 58 26041 Casalmaggiore (CR)
Zona: Casalmaggiore-Piadena-Gussola-Rivarolo Mantovano-Sabbioneta-S.Giovanni in Croce-Martignana di Po
Mostra su mappa
Orari: Dal lunedì al venerdì dalle ore 9 alle ore 13 e dalle ore 15 alle ore 19. Sabato dalle ore 9 alle ore 16
Affiliato
Marida Home Srl
Via Cavour, 58 26041 Casalmaggiore (CR)

2026 Tecnocasa Franchising S.p.A. - P. IVA 08365160152 - Via Monte Bianco 60/A 20089 Rozzano (MI). Ogni agenzia ha un proprio titolare ed è autonoma. Privacy policy | Policy utilizzo | Cookie policy